
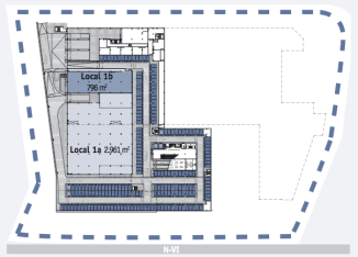
Ya es un hecho, con los permisos en la mano, llega el tercer parque comercial de medianas superficies de Galicia. Tendrá 22.700 metros de superficie alquilable y será el mayor de la comunidad contando en un principio con 800 plazas de parking. Comparte magnitudes con Parque Oleiros -dispone de 22.000 metros y 798 plazas- y supera a Meixueiro en Vigo que cuenta con una superficie de 19.000 metros. Santiago Sur Galicia promueve este proyecto comercial que inicialmente se llamará Parque Ferrol y que arrancó en 2002 de la mano de Metrovacesa para acabar metido años en un cajón. La promotora compostelana lo retomó con éxito en 2009 y planea tenerlo inaugurado en la primavera de 2013 con el motor que supone contar con un Carrefour Planet que haga competencia al histórico Alcampo. La negociación con la multinacional francesa se cerró hace un año. Se reservaron 9.500 metros cuadrados pero la superficie de venta del primer híper Planet nativo de Galicia tendrá unos 7.100 metros. Se verán acompañados por el gigante alemán de la electrónica de consumo MediaMarkt -es la segunda apertura en la provincia-, la tienda de deportes Sprinter y un Burger King. La enseña ilicitana de deportes abre su tercera tienda gallega tras Lugo -en As Termas– y Ourense -en Carrefour Planet en agosto pasado-. Y la lista aún está por completar con algún operador de moda y hasta la posibilidad de que abra una gasolinera. Su posición, limítrofe entre Narón y Ferrol y al lado de la Ap-9 (salida 36F) parece garantizar su éxito futuro. Además, la llegada de este proyecto a O Boial (Santa Icía) -que tendrá una segunda fase con la construcción de 300 viviendas- será un elemento generador de empleo. Se estima que creará 450 puestos de trabajo, unos 700 si contamos los indirectos.










